本使用手册及样例包目录内所包含文档、PLC程序、机床可执行程序(MPF、SPF、…)、电气图,可能与用户实际使用不同,用户可能需要先对例子程序做修改和调整,才能将其用于测试。本例程的作者和拥有者对于该例程的功能性和兼容性不负任何责任,使用该例程的风险完全由用户自行承担。由于它是免费的,所以不提供任何担保,错误纠正和热线支持,用户不必为此联系西门子技术支持与服务部门。
对于在使用中发生的人员、财产损失本公司不承担任何责任,由使用者自行承担风险。
以上声明内容的最终解释权归西门子(中国)有限公司所有,后续内容更新不做另行通知。
适用于带直角头的坐标转换使用,方便加工
直角头,CYCLE800

• V4.7+SP02

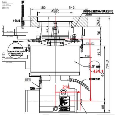
此结构为主轴带动摆头旋转
L1=218
L2=434.1

I3:刀具基准点到第 2 旋转轴回转中心
I2:第 2 旋转轴的回转中心到第 1 旋转轴的回转中心
I1:第 1 旋转轴的回转中心到刀具基准点
1:轴名称C-无需系统是否实际存在此轴
2:轴名称B-无需系统是否实际存在此轴
3:Hirth耦合适合鼠牙盘结构,5是鼠牙盘的分度值
4:第一回转轴绕Z轴旋转,并且为刀具轴,所以设为1
5:第二回转轴绕Y轴旋转,并且为刀具轴,所以设为1

由于附件头的安装位置,所以需要将B轴旋转270度,坐标变换为当前附件头位置

在CYCLE800使用时,防止偏转错方向导致坐标转换错误

需要在cycle800使用时,一直用新建,并且Z0需要在旋转之前抬起(L1+L2=218+434.1),图中的652.1,此处B轴设为270度,不能修改
在MODU=31,CUST_800内调用M31内的
$P_TCANG[1]为第一回转轴需要旋转的角度值
$P_TCANG[2]为第二回转轴需要旋转的角度值
KH($P_TCANG[1])为客户附件头旋转的子程序

此提示不影响正常运行,提示旋转角度,防止设置错误
胡伟
2022-07-06
版本 | 日期 | 修改内容 |
V1.0 | 2022.07.06 |