一、故障现象
一台运用中的德国进口C50切齿机,刀具主轴A轴漏水严重,工件主轴B轴也存在漏水。
配置SINUMERIK 840D系统,威图冷却单元,1FW6230转矩电机。漏水造成每日加水50L


二、七嘴八舌
对其拆解检修前的争论
革金:自修能行吗,A轴垂直轴,上次三个厂家,反复修了近3年。B轴咋弄出来啊?
宝丁:让我咋拆都行,但是你得记录好了啊
尔东:无语......
宝木:自己能修得了不?
三竖:上次自己找的厂家,没有了机械手装卸料的全自动很着急,弄不好就砸到手里!
三、夜不能寐
修,是维修战团的本职工作。
不修,仗未开打就自行退却。
修,是维修水平的综合体现。
不修,小活不干大活干不了。
修,是你我共同作战的结晶。
不修,他为刀俎设备为鱼肉。
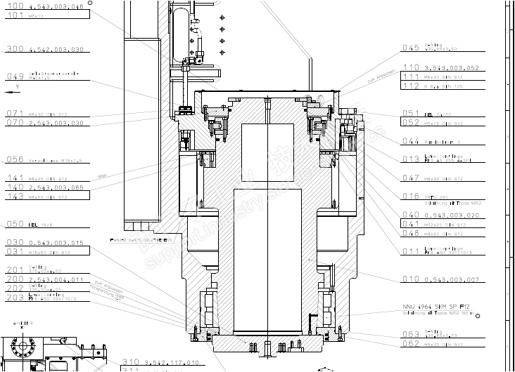
修,就是一张简单的装配图。
不修,图纸看不懂结构不清?
修,全凭识图技巧多年经验。
不修,转矩电机拆装弄不懂?
修,弄好了是你我岗位工作。
修坏,无金刚钻不揽瓷器活。
修坏,谁让你修得不行别接。
修坏,。。。。。。。。。
四、罩壳拆解



