DMF260五轴铣加工中心出现20095的报警

已锁定

gongbo

  • 帖子

    2
  • 精华

    0
  • 被关注

    0

论坛等级:新手

注册时间:2012-03-12

普通 普通 如何晋级?

DMF260五轴铣加工中心出现20095的报警

581

1

2016-04-15 08:11:21

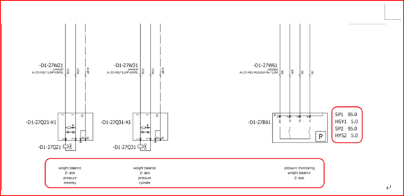
 这个报警是只要重启机床,每次开机都会有。但按“复位”清除报警后再无异常,

 按照上方的电气图进行了检查,发现除了SP1=85 SP2=85的数值相差之外其它都没有问题,

 

DMF260五轴铣加工中心出现20095的报警 已锁定
编辑推荐: 关闭

请填写推广理由:

本版热门话题

SINUMERIK

共有25603条技术帖

相关推荐

热门标签

相关帖子推荐

guzhang

恭喜,你发布的帖子

评为精华帖!

快扫描右侧二维码晒一晒吧!

再发帖或跟帖交流2条,就能晋升VIP啦!开启更多专属权限!

  • 分享

  • 只看
    楼主

top
X 图片
您收到0封站内信:
×
×
信息提示
很抱歉!您所访问的页面不存在,或网址发生了变化,请稍后再试。