我们生产的压机设备,为了安全,压机四周需要安装安全防护围栏,将设备与操作人员隔离开。同时为了方便检修人员检修及保养设备,安全护栏中间会安装安全门。之前的安全门上面只装了限位开关,通过限位开关的信号来判断安全门关闭或打开。最近有个改造项目,客户提出要提高安全门防护等级,并明确提出2点要求:
1.设备正常运行的时候操作人员不能打开门进入防护栏里面。
2.操作人员打开安全门,设备马达及气缸不允许工作,而且要从硬件上进行电气隔离。
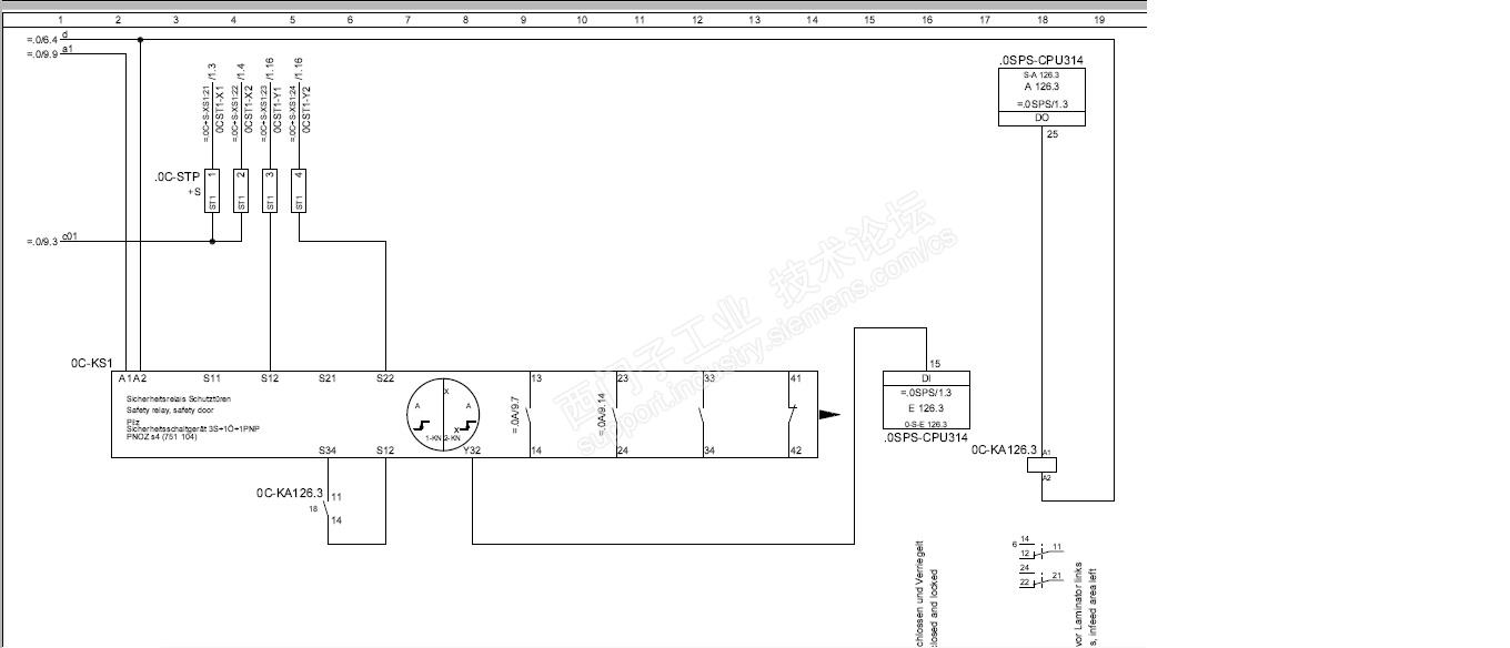
综合客户的要求,我们选择了使用PILZ S4系列的安全继电器作为硬件控制系统,选择施迈赛ALM200 系列电子锁代替原来的限位开关。
首先设计电气原理图。压机防护栏左右两边各有3扇门,因此,需要6个电子锁,我们准备将一边3个电子锁串联起来接入安全继电器回路,只有3个电子锁都关闭,安全继电器才会导通。因此,硬件上面需要6个电子锁,2个安全继电器。电路图如下:



为了操作安全门电子锁,我们在压机每一边安装了按钮盒,按钮盒从上到下安装急停按钮、指示灯、请求开锁按钮、确定开锁按钮。实物图如下:

下面开始编写程序。程序思路很简单,按下请求开锁按钮,如果设备状态允许开锁,此时再次按下确认开锁按钮,电子锁被打开。当按下请求开锁按钮,如果想取消开锁,可以再次按下请求开锁按钮,取消请求开锁信号。当安全门打开后再次关闭,按下确定关闭按钮(此按钮和确定开锁按钮为同一按钮),电子锁锁上。当安全门关闭而电子锁已经锁上,指示灯常亮。如果设备状态允许开锁,此时按下请求开锁按钮,指示灯慢速闪烁,如果设备状态不允许开锁,指示灯快速闪烁,直到设备允许开锁,指示灯由快速闪烁变为慢速闪烁。方便移植使用,程序做成了标准块。程序截图如下:




在调试的时候发现有1个电子锁亮红灯,先断电再次上电还是不行,后来使用了手动钥匙复位之后再次断电上电就好了。


使用的安全继电器实物如下:

安装电子锁后的护栏:

