帮忙看一下这个进口设备是什么原件

已锁定

cyh1986

  • 帖子

    86
  • 精华

    1
  • 被关注

    7

论坛等级:游侠

注册时间:2010-05-12

普通 普通 如何晋级?

帮忙看一下这个进口设备是什么原件

1054

37

2017-02-06 14:57:02


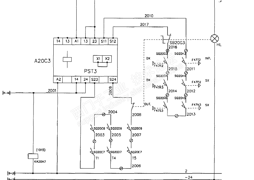
这个是一个意大利进口设备的图纸上面的。没有看见这个东西的实物。分析原理图,这个东西 应该是把一系列的行程开关串并联,满足条件后动作自身的继电器的这样一个东西。
请问这个东西具体叫什么名字。有产品的型号吗?

帮忙看一下这个进口设备是什么原件 已锁定
编辑推荐: 关闭

请填写推广理由:

本版热门话题

SIMATIC S7-200 SMART

共有8945条技术帖

相关推荐

热门标签

相关帖子推荐

guzhang

恭喜,你发布的帖子

评为精华帖!

快扫描右侧二维码晒一晒吧!

再发帖或跟帖交流2条,就能晋升VIP啦!开启更多专属权限!

  • 分享

  • 只看
    楼主

top
您收到0封站内信:
×
×
信息提示
很抱歉!您所访问的页面不存在,或网址发生了变化,请稍后再试。