展开查看
以下是引用Zane在2018-02-27 18:19:35的发言 >4楼:
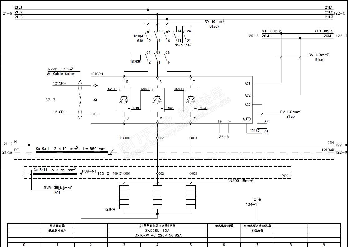
大功率加热,使用接触器控制是不合适的,触点容易拉弧粘连,粘连后无法断开加热回路,会出大事故的。
目前的做法是

以下是引用HUANGZE75在2018-02-27 16:59:23的发言 >:后来发现一些发热圈...
黄工说的有道理,使用接触器作为终极温度保护断开电源,固态继电器作为日常控温使用。固态继电器有个缺点就是负载短路情况下,如果固态上面不是使用高品质的快熔情况下,固态继电器主回路容易短路的。而接触器会好很多的。一般配置的接触器电流大于1.5倍以上的是实际电流。