关于官网资料的疑问,ET200SP 1510-1PN 尺寸

已锁定

鲁西西

  • 帖子

    596
  • 精华

    1
  • 被关注

    149

论坛等级:侠圣

注册时间:2017-10-09

钻石 钻石 如何晋级?

关于官网资料的疑问,ET200SP 1510-1PN 尺寸

762

1

2018-03-09 09:57:37

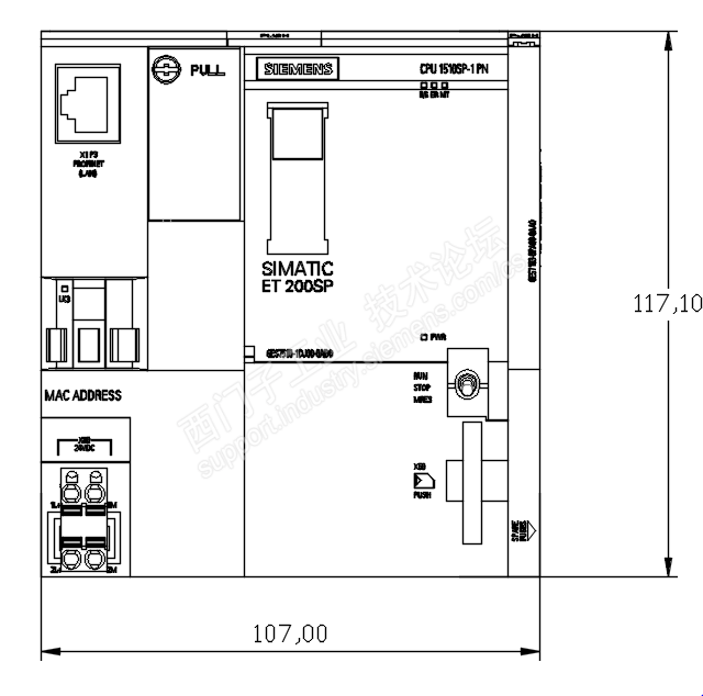
一个问题,官网尺寸和官网3D图对接不上

求证事实。

有实物的朋友可以验证起来

官网尺寸是


官网3D图尺寸是


扎心了,仔细看,才知道,官网主机模块,另外加了一个服务器。。。。。。。

关于官网资料的疑问,ET200SP 1510-1PN 尺寸 已锁定
编辑推荐: 关闭

请填写推广理由:

本版热门话题

SIMATIC S7-1500系列

共有10808条技术帖

相关推荐

热门标签

相关帖子推荐

guzhang

恭喜,你发布的帖子

评为精华帖!

快扫描右侧二维码晒一晒吧!

再发帖或跟帖交流2条,就能晋升VIP啦!开启更多专属权限!

  • 分享

  • 只看
    楼主

top
X 图片
您收到0封站内信:
×
×
信息提示
很抱歉!您所访问的页面不存在,或网址发生了变化,请稍后再试。