回复:关于配方的问题

秋昀

  • 帖子

    187
  • 精华

    0
  • 被关注

    1

论坛等级:游侠

注册时间:2013-09-29

普通 普通 如何晋级?

发布于 2019-04-05 10:49:47

3楼

展开查看
以下是引用秋昀在2019-04-05 10:44:33的发言 >2楼


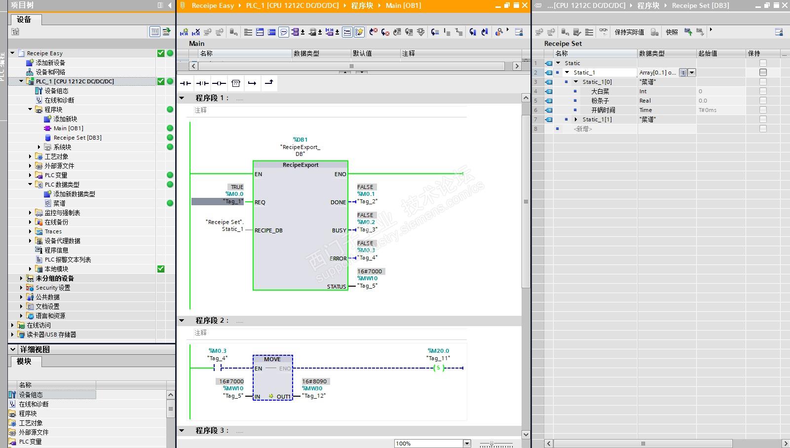
突然总是报8090真是无语了.

以下是引用西家讲师在2019-04-05 10:05:43的发言 >1楼:可以捕捉错误代码和...

引用1楼详细内容:

可以捕捉错误代码和完成位,看看是否导出或报错

是不是不能与WEB文件夹同名?这真是让人猝不及防啊.步步惊心.

评论
编辑推荐: 关闭

请填写推广理由:

本版热门话题

S7-1200精英训练营

共有1959条技术帖

相关推荐

热门标签

相关帖子推荐

guzhang

恭喜,你发布的帖子

评为精华帖!

快扫描右侧二维码晒一晒吧!

再发帖或跟帖交流2条,就能晋升VIP啦!开启更多专属权限!

  • 分享

  • 只看
    楼主

top
X 图片
您收到0封站内信:
×
×
信息提示
很抱歉!您所访问的页面不存在,或网址发生了变化,请稍后再试。