之前没注意过这种数显表的妙用,想当然了。就以为数显表无非就是通过PLC模块的模拟量输出给定数显表显示数值或者通过各种通讯例如rs485,modbus等定义地址通讯协议传送数据方式。。等等。
前段时间还注意过一种表只需要plc两个输出点,就能显示4位或者3位数据的数显表,具体原理请看:
数显表:HLP2B-** 型PLC数显表【再次介绍这种数显表就是,接线简单,只需要接线一对24V电源线,一对PLC输出点接入线就能实现温度、压力、速度、转速、线速度等诸多数值,以及是否带小数点功能】
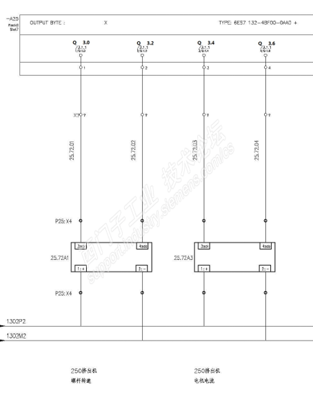
一、接线原理图

二、程序编程:
1、编写FB功能,定义背景数据,逻辑程序如下:




2、然后调用FB 功能即可:

好了这样就可以完成了,是不是很简单,节省了模拟量输出模块,通讯站点等,就能显示设备很多数据,是不是很环保!呵呵呵。