一、数控机床的运动特点
1. 在数控机床中,刀具的基本运动单位是脉冲当量,刀具沿各个坐标轴方向的位移的大小只能是脉冲当量的整数倍。
2.因此,数控机床的运动空间被被离散化为一个网格区域,网格大小为一个脉冲当量,刀具只能运动到网格节点的位置。
如下图所示:

二、插补定义
1.在数控机床的加工过程中,刀具只能以折线的形式去逼近需要被加工的曲线轮廓,其实际运动轨迹是由一系列微小直线段所组成的折线,而不是光滑的曲线。
2.在机床运动过程中,为了实现轮廓控制,数控系统必须根据零件轮廓的曲线形式和进给速度的要求 ,实时计算出介于轮廓起点和终点之间的所有折线端点的坐标(a1、a2、a3、…、),这种实时运算操作就是插补运算。
3.所谓插补,就是根据零件轮廓的几何形状、几何尺寸以及轮廓加工的精度要求和工艺要求,在零件轮廓的起点和终点之间插入一系列中间点(折线端点)的过程,即所谓“数据点的密化过程”,其对应的算法称为插补算法。
如下图所示:

3、工件点描述
工件坐标系
1.为了使机床和系统可以按照给定的位置加工,这些参数必须在一基准系统中给定,它们与加工轴溜板的运行方向相一致。为此可以使用X、Y 和Z 为坐标轴的坐标系。
2.根据DIN66217 标准,机床中使用右旋、直角坐标系。
3.工件零点(W)是工件坐标系的起始点。有些情况下必须使用反方向位置的参数。因此在零点左边的位置就具有负号。
图一:

4、举例确定工件位置
举例图一:

P1 为 X100 Y50
P2 为 X-50 Y100
P3 为 X-105 Y-115
P4 为 X70 Y-75
举例图二:

P1 为 X25 Y-7.5
P2 为 X40 Y-15
P3 为 X40 Y-25
P4 为 X60 Y-35
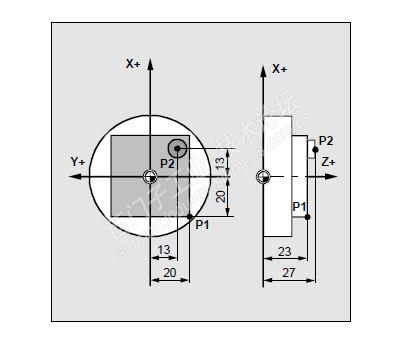
举例图三:

P1 为 X-20 Y-20 Z23
P2 为 X13 Y-13 Z27
举例图四:

P1 为 X10 Y45 Z-5
P2 为 X30 Y60 Z-20
P3 为 X45 Y20 Z-15
5、极坐标
在之前我们所说明的坐标均在直角坐标系中,我们称之为“直角坐标系”。但是另外还有一种坐标系可以使用,也就是“极坐标系”。如果一个工件或者工件中的一部分是用半径和角度标注尺寸,则使用极坐标非常方便。标注尺寸的原点就是“极点”。
如图所示:

P1 为半径=100 角度=30°
P2 为半径=60 角度=75°
6、绝对&相对尺寸
如图所示一:

铣削举例:
点P1 到P3 位置用绝对尺寸表示就是以零点为基准:
P1 为 X20 Y35
P2 为 X50 Y60
P3 为 X70 Y20
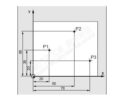
如图所示二:

铣削举例:
在相对尺寸系统中,点P1 到P3 的位置为:
P1 为 X20 Y35 (以零点为基准)
P2 为 X30 Y20 以P1 为基准
P3 为 X20 Y-35 以P2 为基准
7、平面说明
1.每两个坐标轴确定一个平面。第三个坐标轴始终垂直于该平面,并定义刀具进给深度(比如用于2? D 加工)。
2.在编程时要求告知控制系统在哪一个平面上加工,从而可以正确地计算刀具补偿。对于确定的圆弧编程方式和极坐标系中,平面的定义同样很有必要。
3.在NC 程序中,工作平面用G17、G18 和G19 表示:
平面 名称 横向进给
X/Y G17 Z
Z/X G18 Y
Y/Z G19 X
平面坐标图片一:

平面坐标图片二:

8、零点位置
1.在数控机床中定义了不同的零点和基准点。这些基准点可以是:
①机床可以返回的基准点
②工件尺寸编程的基准点
2.它们是:
①M = 机床零点 A=定位点可以与工件零点合并(仅在车床中)
②W = 工件零点 =编程零点
③B = 起始点可以由程序确定。在此开始第一个刀具的加工。
④R = 参考点通过凸轮和测量系统可以确定的位置。
3.到机床零点M的距离必须已知,这样,轴在此处的位置就可以精确地设定值。下边的示意图给出了车床和钻/铣床中零点的位置以及参考点的位置。

9、坐标系
机床坐标系--------基于机床零点M,由实际的轴构成,右手三指定律确定方向,右手中指与进刀方向相对,则大拇指方向为+X、食指方向为+Y、中指方向为+Z

10、基准坐标系
基准坐标系--------基准坐标系是一种直角坐标系,通过运动转换(比如5 轴转换或者通过外壳表面的移动)而形成的机床坐标系;转换功能启动后,可能会偏离轴的平行位置,坐标系不一定是直角。零点偏移、比例尺功能等等均在基准坐标系中进行。确定工作区域范围时,坐标系的尺寸也是以基准坐标系为基准的。

11、工件坐标系
工件坐标系--------基于工件零点M,在工件坐标系中给出工件的几何尺寸。或者另一种表达:NC 程序中的数据以工件坐标系为基准。

给需要的兄弟普及一下NC方面的实用知识,希望能够对需要的人有所帮助!