NX Industrial Electrical Design
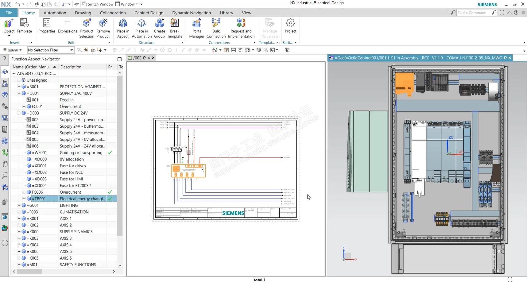
NX Industrial Electrical Design from Siemens Digital Industries Software enables simultaneous, parallel engineering across all disciplines involved. The basis for this mechatronic engineering approach is a common data model for mechanical, electrical and automation engineering. This results in consistent data between system planning, mechanical CAD, circuit diagrams, PLC hardware configuration, signals and PLC software.
Siemens Digital Industries Software 的 NX 工业电气设计支持跨所有相关学科进行同步、并行工程设计。 这种机电一体化工程方法的基础是机械、电气和自动化工程的通用数据模型。这导致系统规划、机械 CAD、电路图、PLC 硬件配置、信号和 PLC 软件之间的数据一致。
The mechatronic data model included in NX Industrial Electrical Design ensures consistency throughout the entire engineering process. As a result, the solution acts as a mechatronic control center and now offers NX Industrial Electrical Design, a fully integrated, full-fledged ECAD module whose data is synchronized with mechanical and automation engineering.
NX 工业电气设计中包含的机电一体化数据模型可确保整个工程流程的一致性。因此,该解决方案充当机电一体化控制中心,现在提供 NX 工业电气设计,这是一个完全集成、成熟的 ECAD 模块,其数据与机械和自动化工程同步。
Integrated in NX, Industrial Electrical Design includes extensive functionality for the creation of circuit diagrams and 3D cabinet design. This data model links the 2D schematic symbols and the corresponding representation in the 3D cabinet. Thus, the electrical engineer has consistent data at all times and the possibility to navigate between the circuit diagram and the control cabinet display.
工业电气设计集成在 NX 中,包括用于创建电路图和 3D 机柜设计的广泛功能。此数据模型将 2D 原理图符号与 3D 机柜中的相应表示链接起来。因此,电气工程师始终拥有一致的数据,并且可以在电路图和控制柜显示器之间导航。
